青岛垚鑫智能科技有限公司
宣传

位置:天辰平台 >

有色技术频道 >

> 废水处理技术

分类:
全部
矿山技术
冶金技术
材料制备及加工技术
环境保护技术
分析检测技术
 
全部
废水处理技术
大气治理技术
固/危废处置技术
土壤修复技术
地区:
全部
北京
天津
上海
重庆
河北
山西
辽宁
吉林
黑龙江
江苏
浙江
安徽
福建
江西
山东
河南
湖北
湖南
广东
海南
四川
贵州
云南
陕西
甘肃
青海
内蒙
广西
西藏
宁夏
新疆
其他
其他
展开
 
全部

有色金属废水处理技术理论与应用

免费发布技术信息>>
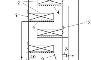
防止填料板结的微电解装置

本实用新型公开了一种防止填料板结的微电解装置,包括反应器和供气装置,反应器的顶部设有排气口,上部设进水口,下部设出水口,底部设有排渣口,在反应器内部至少设两层填料层,填料层位于进水口与出水口之间,从上至下,相邻的两层填料层交错设置使反应器内形成折流通道,在每层填料层下方设有与供气装置连通的曝气器。该微电解装置交替设有多个填料层,且每层填料层下方都设有曝气孔,有效的防止填料出现结块、板结以及防止出现沟流,由于水流方向和气流方向的交替进入的形式,填料与废水、空气容易与充分接触,强化反应效率,保证铁屑和碳粒分布均匀、稳定,增加系统反应的稳定性,降低了废水处理成本。

标签:
废水处理
湖南 - 长沙 来源:天辰平台网 2023-03-19
高效的有机废气冷凝回收系统

本实用新型公开了一种高效的有机废气冷凝回收系统,包括第一吸附器、第二吸附器、第三吸附器和下水管,所述第一吸附器、第二吸附器和第三吸附器均与蒸汽输入管相连通设置。该高效的有机废气冷凝回收系统,结构设置合理,本系统通过往第一吸附器、第二吸附器和第三吸附器内输入热蒸汽、空气以及废气,使得废气在高温情况先杀菌,再不断的吸附去除废气中的大颗粒物质,将有机物脱离出来,通过下水管将凝结的废水输入到冷凝器内,进行冷凝,有机液废水经过第二输液管进入到倾析器内,进行离心分层析出,将可回收的液体通过第一输液管进行回收,通过排液泵可以利用溶剂回收液管将回收罐内的溶液回收储备。

标签:
废水处理
山东 - 济南 来源:天辰平台网 2023-03-19
生态循环染色系统
生态循环染色系统 801     
 0

本实用新型涉及一种生态循环染色系统,属于印染设备领域。现有技术中存在印染废水不能循环。本实用新型包括中的染色装置与一号循环泵通过一号管道连通,一号循环泵与水箱通过二号管道连通,染色装置和一号阀门之间的一号管道与二号循环泵通过三号管道连通,二号循环泵与分离净化装置通过四号管道连通,捕捉反应装置与三号阀门和二号循环泵之间的三号管道通过五号管道连通,七号管道的一端和九号管道的一端均与六号管道的一端连通,七号管道的另一端与捕捉反应装置连通,九号管道的另一端与分离净化装置连通,六号管道的另一端与二号循环泵和四号阀门之间的四号管道连通,分离净化装置与水箱通过八号管道连通。该系统实现了废水的循环利用。

标签:
废水处理
浙江 - 杭州 来源:天辰平台网 2023-03-19
晶硅线切割废砂浆中碳化硅及硅粉浆料碱洗液及酸洗液处理系统

一种晶硅线切割废砂浆中碳化硅及硅粉浆料碱洗液及酸洗液处理系统,包括:碱洗液收集罐;碱洗液压滤机,进液口与碱洗液收集罐出液口连接;酸洗液收集罐;酸洗液压滤机,进液口与酸洗液收集罐出液口连接;第一、第二浆料配制罐,进料口分别与碱洗液压滤机及酸洗液压滤机底部滤饼出口相对;中和罐,进液口与碱洗液压滤机及酸洗液压滤机滤液出口连接;氢氧化钙贮存罐,出料口与中和罐进料口连接;废水压滤机,进液口与中和罐出液口连接,滤液出口与废液池连接;滤饼收集袋,设于废水压滤机下方。通过压滤机实现对废砂浆中的碳化硅及硅粉进行再生处理中废弃酸洗液及碱洗液的回收处理,合理利用资源、降低生产成本、避免浪费。

标签:
废水处理
江苏 - 徐州 来源:天辰平台网 2023-03-19
可变微孔防堵曝气软管
可变微孔防堵曝气软管 1104     
 0

本实用新型提出了一种可变微孔防堵曝气软管,包括内层和外层,所述内层由涤纶纱编织成网套形成的,所述外层为聚氯乙烯加防老化助剂涂塑而成的;所述软管周径表面设有多个可变微孔,当曝气时软管鼓胀,可变微孔呈张开状态,当不曝气时软管被压扁,可变微孔呈封闭状态。本实用新型充分体现了“增氧”、“搅拌”、“冲刷”的现代废水治理三大功效,满足了废水治理“实用”、“简便”、“价廉”的一般要求。

标签:
废水处理
福建 - 厦门 来源:天辰平台网 2023-03-19
竖流式电催化氧化和气浮联合除油装置

本实用新型公开了一种竖流式电催化氧化和气浮联合除油装置,以解决目前单用电催化氧化或气浮装置除油效果不佳的问题。它主要由分离池和分离池内的立式处理仓组成,含油废水从下到上依次经过立式处理仓的进水口、调节段、整流栅、电催化氧化电极组和接触室后溢流至分离池内,外部加药管与调节段相连,整流栅为调节水流量并过滤杂质的细格板,接触室用于将经过电催化氧化电极组处理后上浮的轻质油和气泡充分接触,分离池顶部有刮油栅,下部有排水管,底部设有排泥管。本实用新型将含油废水处理的气浮工艺和电催化氧化工艺结合起来,提高了处理效果。

标签:
废水处理
湖北 - 武汉 来源:天辰平台网 2023-03-19
淀粉废渣处理回收装置

本实用新型涉及有机废弃物处理装置技术领域,尤其涉及一种淀粉废渣处理回收装置。本实用新型包括固定支架、粉碎机,固定支架的顶端一侧固定安装有发酵罐;发酵罐的顶端中部开有上开口;发酵罐的底端中部开有下开口;发酵罐的顶端中部上方焊接有废渣进料管;废渣进料管的顶端焊接有废渣进料斗;废渣进料斗的底端一侧水平设置有半圆挡板;半圆挡板的顶端和废渣进料斗的内壁之间设置有弧面;本实用新型采用发酵罐对淀粉废渣进行初步处理,将淀粉废渣经过发酵后分离为固体废渣和有机废水,有利于对淀粉废渣深度加工;采用微生物燃料电池,可以把淀粉废渣经过发酵后分离出来的有机废水用来发电,有利于节能环保。

标签:
废水处理
河北 - 邢台 来源:天辰平台网 2023-03-19
空心玻璃微珠漂选装置
空心玻璃微珠漂选装置 1185     
 0

本实用新型是空心玻璃微珠漂选装置,其结构是水槽上部设漂选槽,内中部设过滤板,水槽侧面连接回水管一端,另一端连接混合箱,混合箱顶部连接加料管,混合箱内设搅拌装置,混合箱下部连接输料管的一端,另一端连接缓冲槽,缓冲槽设置在漂选槽侧面上,缓冲槽内侧的漂选槽侧面上开有进料口,漂选槽内底部设斜板,斜板较低一端的漂选槽侧壁上设沉珠收集口,斜板中部设竖直的挡板,漂选槽上方设刮板,漂选槽顶端设斜导料板,斜导料板连接漂珠过滤箱,漂珠过滤箱中部设漂珠出料滤网,漂珠过滤箱底部连接废水管的一端,另一端连接水槽,废水管连接水槽处高于过滤板。本实用新型的优点:节能环保,分选效率高,效果好。

标签:
废水处理
江苏 - 南京 来源:天辰平台网 2023-03-19
水循环利用系统
水循环利用系统 724     
 0

本实用新型属于废水利用技术领域,公开了一种水循环利用系统,包括:预处理单元,预处理单元的入口与废水管路连通;反渗透装置,反渗透装置上设有除盐水出口和浓缩水出口,预处理单元的出口与反渗透装置的入口连通;电渗析装置,电渗析装置的入口与浓缩水出口连通;光催化单元,光催化单元的接入端与淡化水出口连通,光催化单元的接出端与反渗透装置的入口连通。本实用新型通过在现有的水循环利用系统中加入电渗析装置和光催化装置,提高了工艺出水中浓盐水的浓度,可降低浓盐水蒸发过程中的能耗,达到环保的目的;消除了循环处理水设备中COD富集、处理水粘度升高的现象,保障反渗透装置的正常运行,延长其使用寿命,达到节能的目的。

标签:
废水处理
北京 - 北京 来源:天辰平台网 2023-03-19
油泥处理设备
油泥处理设备 919     
 0

本实用新型是关于一种油泥处理设备,包含:污泥干燥机、洗涤塔以及油水分离装置。污泥干燥机具有油泥入口、惰性气体入口、第一废气出口和干燥油泥出口;洗涤塔具有入口、出口和第二废气出口,污泥干燥机的第一废气出口连通于洗涤塔的入口;油水分离装置具有油水分离入口、油水排放出口和废水排放出口,所述洗涤塔的出口连通于油水分离装置的油水分离入口;其中,洗涤塔的出口是在将含油废水排放给油水分离装置进行油水分离,洗涤后的废气则自第二废气出口排出。由此,以将油泥处理过程中所产生包括挥发性气体和油气等的废气予以安全、环保且有效地处理掉。

标签:
废水处理
其他 - 其他 来源:天辰平台网 2023-03-19
自循环上流式厌氧污泥床系统

本实用新型属于废水处理技术领域,目的是提供一种耐冲击力大、池容小、能精确控制废水上升流速、处理效果好的自循环上流式厌氧污泥床系统,包括调节池、厌氧反应池、三相分离器、布水器、集水槽,布水器安装在厌氧反应池顶部,调节池内安装提升泵,提升泵经进水管与布水器连通,进水管上安装总流量计,布水器的布水管与输送管道连接,厌氧反应池内上部安装多个三相分离器,三相分离器的排气孔经管道与废气主管道连通,厌氧反应池的两侧壁之间设置多条溢流堰,厌氧反应池外侧壁上设置集水槽,溢流堰的一端与集水槽相通,集水槽内安装循环水泵,循环水泵经循环管路与布水器的进水口连通,循环管路上安装循环流量计,集水槽的底部设置排水口。

标签:
废水处理
北京 - 北京 来源:天辰平台网 2023-03-19
用于空气加热的换热管

本实用新型公开了一种用于空气加热的换热管,包括空气加热通道管,所述空气加热通道管内的空气通道两端分别为空气加热入口和热空气出口;所述空气加热通道管内沿空气通道延伸方向依次包括高温蒸汽换热单元、锅炉废水换热单元和锅炉烟气换热单元;本实用新型的结构简单,在对空气预热的过程中充分利用锅炉废水和锅炉尾气中的能量,起到节能减排的作用,同时每层换热管组上的相邻两换热管之间一体化连接有两片锯齿状换热板,该锯齿状换热板增加换热通道中的换热面积,同时尽可能的降低气流阻力。

标签:
废水处理
江苏 - 无锡 来源:天辰平台网 2023-03-19
餐厨垃圾处理系统
餐厨垃圾处理系统 1184     
 0

一种餐厨垃圾处理系统,其特征在于:具有餐厨垃圾回收系统,餐厨垃圾回收系统通过输送装置连接碾磨脱水系统,碾磨脱水系统分别与固体垃圾回收系统、含油废水收集系统连接,含油废水收集系统通过泵与油水分离系统连接,油水分离系统分别连接有积水池和集油箱;固体垃圾回收系统连接有磨盘粉碎装置,磨盘粉碎装置连接电机,固体垃圾回收系统与磨盘粉碎装置之间装设有重力感应装置,重力感应装置控制电机的开关,磨盘粉碎装置为三层,三层磨盘之间的磨辊槽由上至下依次变小,从餐厨垃圾的源头进行分类防污处理,从源头杜绝餐厨垃圾的不规范排放造成的环境污染和餐厨废油的不规范使用,同时,通过磨盘粉碎机将固体垃圾完全,有利于回收再利用。

标签:
废水处理
四川 - 自贡 来源:天辰平台网 2023-03-19
餐厨垃圾处理系统
餐厨垃圾处理系统 764     
 0

餐厨垃圾处理系统,有餐厨垃圾回收系统,餐厨垃圾回收系统通过输送装置连接碾磨脱水系统,碾磨脱水系统分别与固体垃圾回收系统、含油废水收集系统连接,含油废水收集系统通过泵与油水分离系统连接,油水分离系统分别连接有积水池和集油箱;餐厨垃圾回收系统,分为为垃圾层和液体层,垃圾层和液体层之间设有筛板,筛板连接有振动器,当筛板液体流通不畅时打开振动器使固体垃圾与筛板之间产生间隙,液体可以通畅的流入液体层,垃圾回收系统的垃圾层内套设有漏水箱,可以很方便的将垃圾取出,对餐厨垃圾回收系统进行清理,本实用新型从餐厨垃圾的源头进行分类防污处理,从源头杜绝餐厨垃圾中含油污水的不规范排放造成的环境污染和餐厨废油的不规范使用。

标签:
废水处理
四川 - 自贡 来源:天辰平台网 2023-03-19
涂装前脱脂和脱脂清洗工序节水减污降耗装置

本实用新型涉及一种节水减污降耗装置,公开了一种涂装前脱脂和脱脂清洗工序节水减污降耗装置,包括脱脂装置,脱脂装置设置在撬装式平台上,所述脱脂装置包括加热除油器、过滤提升泵、吸附过滤罐、污油槽和电控柜,其中,加热除油器固定安装在撬装式平台上,过滤提升泵与加热除油器相连,吸附过滤罐、污油槽和电控柜从左至右依次固定安装在撬装式平台上。本实用新型通过实施节水减污技术,保留废水中的有效成分,除去废水中影响生产的有害杂质,处理后的清洁水重新回用于生产,不但保护了环境,而且降低了企业的生产成本。

标签:
废水处理
浙江 - 宁波 来源:天辰平台网 2023-03-19
用于高效固体微生物菌剂培养扩增装置

本实用新型涉及一种用于高效固体微生物菌剂培养扩增装置,包括进水管、出水管、池体、搅拌装置、曝气装置、泥斗和排泥管,进水管设置于池体侧壁顶部,出水管设置于池体侧壁底部,搅拌装置包括动力设备、传动杆和桨叶,传动杆连接动力设备和桨叶,泥斗设置于池体底部与排泥管连接,曝气装置设置于池体内底部,本实用新型既可实现好氧培养也可用作厌氧操作,搅拌装置在搅拌时不仅实现了水平混合,也可使装置内的液体上下对流,加强了混合效果,池体底部设有泥斗,可以及时排出沉积物,同时也可作为排空管,使装置排空,本实用新型的目的是通过对高效固体菌剂的扩增,为高氨氮废水处理不断提供新的补充菌液,降低企业氨氮废水处理成本。

标签:
废水处理
甘肃 - 兰州 来源:天辰平台网 2023-03-19
利用焦化烟气生产稀硫酸的生产设备

本实用新型公开了利用焦化烟气生产稀硫酸的生产设备,包括脱硫塔、原烟筒、尾气进口、工艺水槽和脱硫循环泵,所述脱硫塔的顶端和原烟筒相连通,且脱硫塔的边侧中段安装有尾气进口,并且脱硫塔和工艺水槽与双氧水储罐相连,所述工艺水槽和工艺水泵的输入端相连通,且工艺水泵的输出端和脱硫塔相连通,并且脱硫塔的底端和脱硫循环泵相连,同时脱硫循环泵设置有两个。该利用焦化烟气生产稀硫酸的生产设备,采用双氧水法脱硫技术,以双氧水为原料,回收烟气中的二氧化硫,并且能够生产稀硫酸,在脱硫的过程中不会产生二次污染,处理过程中不会产生废水,无需使用废水处理设备,同时不会产生废渣,节省了大量的人力和经济成本。

标签:
废水处理
山东 - 泰安 来源:天辰平台网 2023-03-19
新农村生活污水处理装置

本实用新型公开了一种新农村生活污水处理装置,包括一级沉淀池、二级沉淀池、沼气池和地埋式一体化污水处理设备,一级沉淀池连接有污水进管,一级沉淀池的上部与二级沉淀池之间通过管道连接,一级沉淀池的底部和二级沉淀池的底部均连接污泥泵后连接至沼气池,二级沉淀池的上部连接有出水管,出水管上设有水泵,出水管连接有多个分支管,分支管上均设有阀门;多个分支管与鱼塘、农田、地埋式一体化污水处理设备一一对应连接,地埋式一体化污水处理设备包括埋于地下的依次设置的格栅过滤池、调节池、水解酸化池、氧化池、沉降池和清水池。能够有效利用废水,实现循环水资源的循环利用,有效防止废水排放污染环境的问题。

标签:
废水处理
山东 - 潍坊 来源:天辰平台网 2023-03-19
方便上下料的硫酸软骨素生产用脱水装置

本实用新型公开了一种方便上下料的硫酸软骨素生产用脱水装置,包括机体、脱水桶、料桶、阻尼减震器、动力装置和废水处理装置,所述机体的下方设有阻尼减震器;所述机体内同轴安装有脱水桶,所述脱水桶口安装若干卡扣装置,所述脱水桶内部下表面中心设置有凸起块;所述料桶可同心放置于脱水桶内部,所述料桶口设置有向内延伸的边沿,所述料桶下表面中心设置有插槽。本实用新型应用于硫酸软骨素生产过程中,避免了人工向脱水装置内捞取料物,可使工作人员轻松的上下料,降低了工作难度,大大提高了工作效率;同时,设置废水处理装置和隔音层,降噪、降低环境污染。

标签:
废水处理
江苏 - 无锡 来源:天辰平台网 2023-03-19
半导体设备的废料排出装置

本实用新型涉及一种半导体设备的废料排出装置,包括防水板(1)、滤渣板(2)、排水板(3)、渣料处理池(4)以及废水处理池(5),防水板(1)位于半导体设备的底部,所述防水板(1)上开设有一个出水口(6),所述出水口(6)与所述半导体设备的废料排出口连接,所述滤渣板(2)设置在所述防水板(1)的下部,所述滤渣板(2)的一端与所述渣料处理池(4)连接,所述排水板(3)设置在所述滤渣板(2)的下部,所述废水处理池(5)位于所述排水板(3)的下部。本实用新型提供的半导体设备的废料排出装置持久耐用,不需要定期更换,降低了设备故障率,节约了设备和维护成本。

标签:
废水处理
浙江 - 宁波 来源:天辰平台网 2023-03-19
污泥处理系统
污泥处理系统 1148     
 0

本实用新型提供的污泥处理系统,包括污泥浓缩池、酸化池、电解池、固液分离装置Ⅱ、固化池和污泥干化机;所述污泥浓缩池出泥口连接酸化池进泥口,所述酸化池出泥口连接电解池进泥口,所述电解池出泥口连接固液分离装置Ⅱ,所述固液分离装置Ⅱ出泥口连接固化池进泥口,所述固化池出泥口连接污泥干化机进泥口;通过这一系列单元的处理,不仅能够去除污泥中的重金属、污染性有机物,杀菌、除臭,还能为底泥的资源化利用打下基础。本实用新型的污泥处理系统还包括设置于污泥浓缩池之前的预处理单元、设置于干化机之后的改性单元、用于废水处理的废水处理单元以及用于废气处理的废气处理单元,形成了一个完整的污泥处理链,处理效果非常好。

标签:
废水处理
重庆 - 重庆 来源:天辰平台网 2023-03-19
应用在MVR中的石膏晶体防垢系统

本实用新型公开了一种应用在MVR中的石膏晶体防垢系统,包括蒸发器、换热器、强制循环泵以及母液罐,蒸发器、换热器以及强制循环泵共同连接成循环回路,母液罐通过管道与循环回路接通,蒸发器上设置有石膏晶体进口和料液出口。基于同种物质的亲合力大于异种物质的亲合力这一原理,将石膏晶体均匀地分散在液相废水中,废水中的钙离子和硫酸根离子会凝聚在石膏晶体上并结晶析出,有效避免了钙离子和硫酸根离子附着在蒸发器表面,导致传热不均和传热效率低下的问题,同时也达到了延长清洗周期的目的。可带来较大的经济效益、社会效益和环境效益。

标签:
废水处理
北京 - 北京 来源:天辰平台网 2023-03-19
高效去除水中硫化物的专用装置

本实用新型涉及水净化技术领域,具体为一种高效去除水中硫化物的专用装置。该装置包括:直流电源一、电化学装置一、澄清池一、加药泵、直流电源二、电化学装置二、澄清池二,直流电源一、电化学装置一、澄清池一构成一级电化学装置,直流电源二、电化学装置二、澄清池二构成二级电化学装置,一级电化学装置的澄清池一与二级电化学装置的电化学装置二通过管路相通。利用该装置对含硫化物废水或生活饮用水进行处理,硫化物去除率可达99.9%以上。一般来说,含硫化物的废水和生活饮用水经过本实用新型处理后,硫化物含量可分别达到排放标准和饮用水标准。

标签:
废水处理
江苏 - 苏州 来源:天辰平台网 2023-03-19
二氧化氯强化内电解反应装置

本实用新型公开了一种二氧化氯强化内电解反应装置,将强氧化剂二氧化氯和内电解结合,采用二氧化氯对铁碳填料进行曝气,强化内电解反应。该装置包括池体,池体的上下位置分别设置有出水管和进水管,池体内部自下而上沿水流方向依次设有相互连通的布水区、承托层、填料层、集水区等;其中,装置还设有二氧化氯投加系统,二氧化氯投加系统由二氧化氯发生器、水射器、回流增压泵及埋设在承托层中二氧化氯曝气管组成,承托层填装有一定级配粒径的卵石;填料层中填装有改性多孔复合铁碳球形填料,填料层中设置有搅拌装置。本实用新型对印染废水等较难处理的废水处理效果好,出水稳定达标,结构紧凑,占地面积小,自动化程度高,操作和维护都很方便。

标签:
废水处理
湖北 - 武汉 来源:天辰平台网 2023-03-19
模具防漏装置
模具防漏装置 927     
 0

本实用新型公开了一种模具防漏装置,旨在提供一种提高生产效率的模具防漏装置。它包括包括模温机、防漏组件、注塑机和废水处理池,所述模温机上设有进水蝶阀,所述防漏组件设置于模温机和注塑机之间,所述防漏组件分别与模温机和注塑机内连通,所述废水处理池与注塑机内连通。本实用新型的有益效果是:排水和更换模具速度快,缩短更换模具时间,达到了提高生产效率的目的;模具温度控制均匀稳定,保证产品质量好;单向阀确保模温机内水不会排出,模温机内始终有水可用于模具上,生产可持续;保证生产干净不会造成污染;安装维修方便。

标签:
废水处理
浙江 - 宁波 来源:天辰平台网 2023-03-19
复合型废气处理设备
复合型废气处理设备 833     
 0

本实用新型属于废气处理领域,具体涉及一种复合型废气处理设备,包括箱体,所述箱体的左端开设有进气孔,所述箱体的上端通过螺纹连接有箱盖,所述箱盖开设有入水孔,所述入水孔内滑动套接有入水管,所述入水管的右端套接有水泵。本实用新型通过设置出水孔、过滤筒和沉淀槽,废水中颗粒物被过滤进入沉淀槽,废水得以多次利用,减少了水资源的浪费,设置第四止水阀,可以控制出水管中水流,便于拆卸沉淀槽倒出过滤物,通过设置入料孔和第一止水阀可以根据废气组成成分进入相应试剂,通过雾化喷头进入箱体内,对废气进行净化,也可以在粉尘型废气进入箱体内时控制第一止水阀,仅通过净水进行降尘处理,控制方便,可以对废气进行针对性处理。

标签:
废水处理
江苏 - 南京 来源:天辰平台网 2023-03-19
油田开采用废液处理装置

本实用新型公开了一种油田开采用废液处理装置,涉及油田废液处理技术领域,包括外壳,所述外壳的内部设有过滤净化组件,所述外壳的顶面依次贯穿设有粗滤插孔、精滤插孔和净化插孔,所述粗滤插孔、精滤插孔和净化插孔的相对壳底面设有与之相对应的插槽,利用粗滤框架内的格栅板能够截阻大块固体污染物,而精滤框架内的筛网,能够截阻、去除废水中的纤维、纸浆等较细小的悬浮物,最后净化框架内的左侧净化滤布、吸附颗粒和右侧净化滤布,可截阻、去除废水中更为细小悬浮物,提升对废液的处理效果及效率,并且粗滤插孔、精滤插孔和净化插孔可对粗滤框架、精滤框架和净化框架进行便捷式的拆装,可定期对内部的杂质进行清理,提升装置实用性。

标签:
废水处理
黑龙江 - 大庆 来源:天辰平台网 2023-03-19
新型多点过滤设备
新型多点过滤设备 891     
 0

本实用新型公开了一种新型多点过滤设备,包含:壳体,设有废渣排放口、入水口和出水口,废渣排放口设置在壳体的底部,入水口设置在壳体的下部,出水口设置在壳体的上部;大滤芯,设置在壳体中,位于入水口的上方;分隔板,设置在大滤芯的上方,分隔板和大滤芯将壳体分为上腔体、中腔体和下腔体,出水口位于上腔体的侧壁,入水口位于下腔体的侧壁;若干水管,的一端位于中腔体中,另一端与上腔体相衔接,经大滤芯过滤后的废水,沿水管从中腔体向上流入上腔体中;若干小滤芯,设置在分隔板上,若干小滤芯与若干水管一一对应,用于过滤沿水管流入上腔体中的废水。本实用新型采用二次过滤结构,结构精巧,泥水分离速度快且分离彻底。

标签:
废水处理
上海 - 上海 来源:天辰平台网 2023-03-19
废包装容器清洗设备
废包装容器清洗设备 1017     
 0

本实用新型公开了一种废包装容器清洗设备,包括操作间、输送机以及废水收集池,所述废水收集池安设于所述操作间下部,所述输送机安设于所述操作间内,所述输送机上设置有冲压式清洗结构,所述冲压式清洗结构一侧设置有风暖烘干结构,本实用新型涉及容器清洗设备技术领域,通过在处理仓内设置输送机,将使用后的塑料桶倒置在输送机上,利用输送机一侧的冲压式清洁结构,对塑料桶进行冲洗杀菌,冲洗后的塑料桶进通过风暖式烘干结构进行烘干,并入到存放仓内进行存放,以待下次取用,结构简单,操作方便,自动化程度高,解决了现有技术中,没有专用设备对PE桶进行清洗,只是单纯的进行冲洗清洁,重复使用容易造成二次污染的问题。

标签:
废水处理
江苏 - 扬州 来源:天辰平台网 2023-03-19
节能型耙式干燥装置
节能型耙式干燥装置 763     
 0

本实用新型涉及一种节能型耙式干燥装置,包括顺次连接的输送泵、耙式干燥机以及组合除尘器,组合除尘器与耙式干燥机之间连接有压缩机,高盐母液废水在输送泵的作用下输入耙式干燥机进行干燥,以得到水蒸气混合物以及固体盐,将水蒸气混合物输入组合除尘器内进行除尘后得到水蒸气,水蒸气经过压缩机压缩后输入耙式干燥机内以进行循环使用。本实用新型充分利用二次蒸汽的热能,通过压缩机做功,少用或者不用鲜蒸汽作为热源,减少了对锅炉设备的依赖,减少了污染物,对环境无污染,还大大降低了运行成本,更加节能环保,实现节能效果好、成本低廉地进行高盐母液废水的干燥。

标签:
废水处理
广东 - 深圳 来源:天辰平台网 2023-03-19
上一页 497 498 499 500 501 ... 2000 ... 3160 下一页
共3160页    到第

天辰平台为您提供最新的有色金属废水处理技术理论与应用信息,涵盖发明专利、权利要求、说明书、技术领域、背景技术、实用新型内容及具体实施方式等有色技术内容。打造最具专业性的有色金属技术理论与应用平台!

全国热门有色金属设备推荐
展开更多 +
全国热门有色金属技术推荐
展开更多 +

 

江西省隆恩特环保设备有限公司
宣传

报名参会
更多+

报告下载

有色专家
更多+

北京科技大学
主任/教授
江西铜业集团有限公司
党委书记、董事长
中南大学
教授
中国铝业集团有限公司
中国铝业股份有限公司党委书记
中国有色金属工业协会
教授级高级工程师
赤泥综合利用研究报告2025
推广

热门技术
更多+

推荐企业
更多+

福建省金龙稀土股份有限公司
宣传

发布

在线客服

公众号

电话

顶部
咨询电话:
010-88793500-807